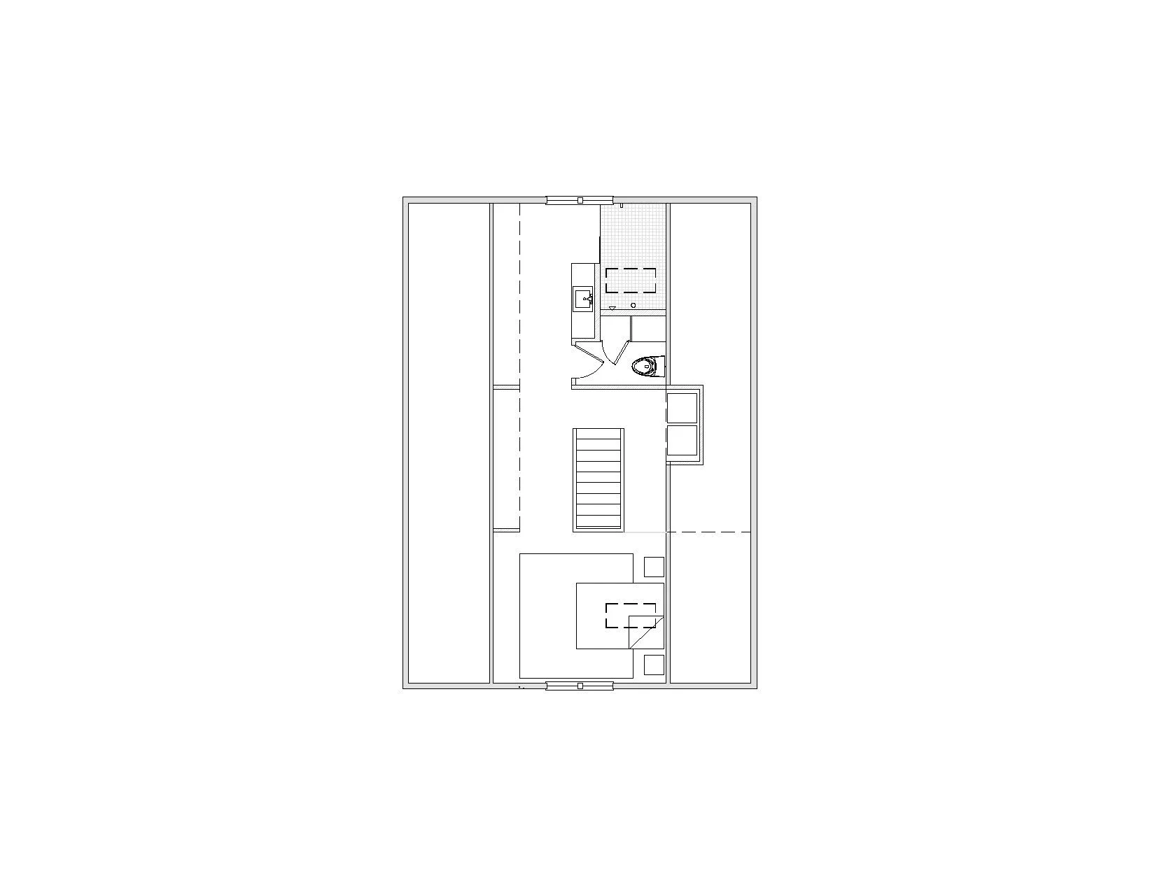
The Attic

Forced to work strictly within the existing roof envelope, this renovation treats the attic as a high-efficiency spatial puzzle. By eschewing a costly addition in favor of bespoke built-ins and a sculptural "funky" shower, we transformed a cramped storage area into a vibrant, full-service suite for a growing family.

Previous
Previous

Ridge Road

Next
Next

St. Charles Garage