Ridge Road

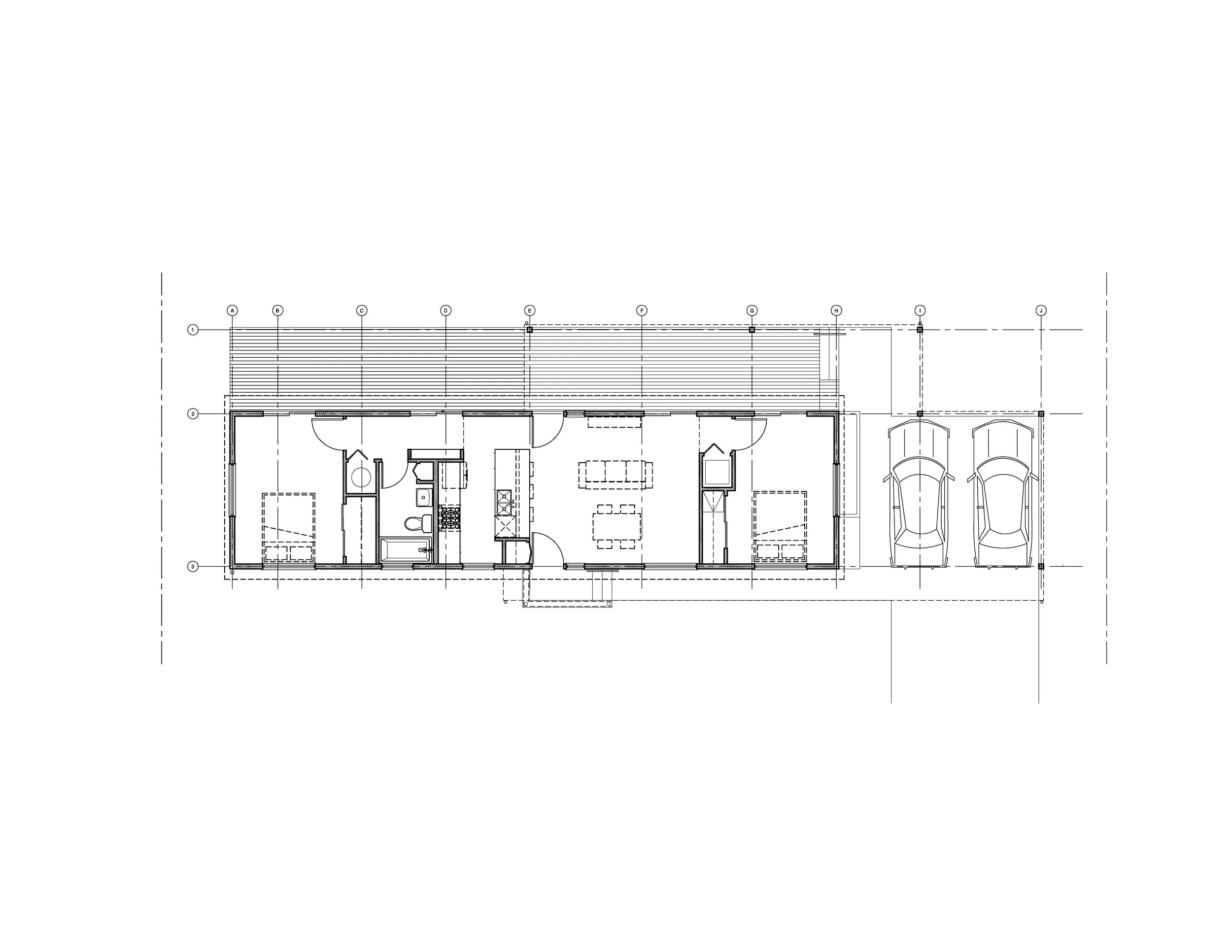
This budget-conscious linear home proves that high design is accessible through the clever use of off-the-shelf industrial components. By utilizing a streamlined footprint and standard parts, the layout maximizes value while dissolving the barrier between the interior living space and a lush, private rear garden.

Next
Next

The Attic