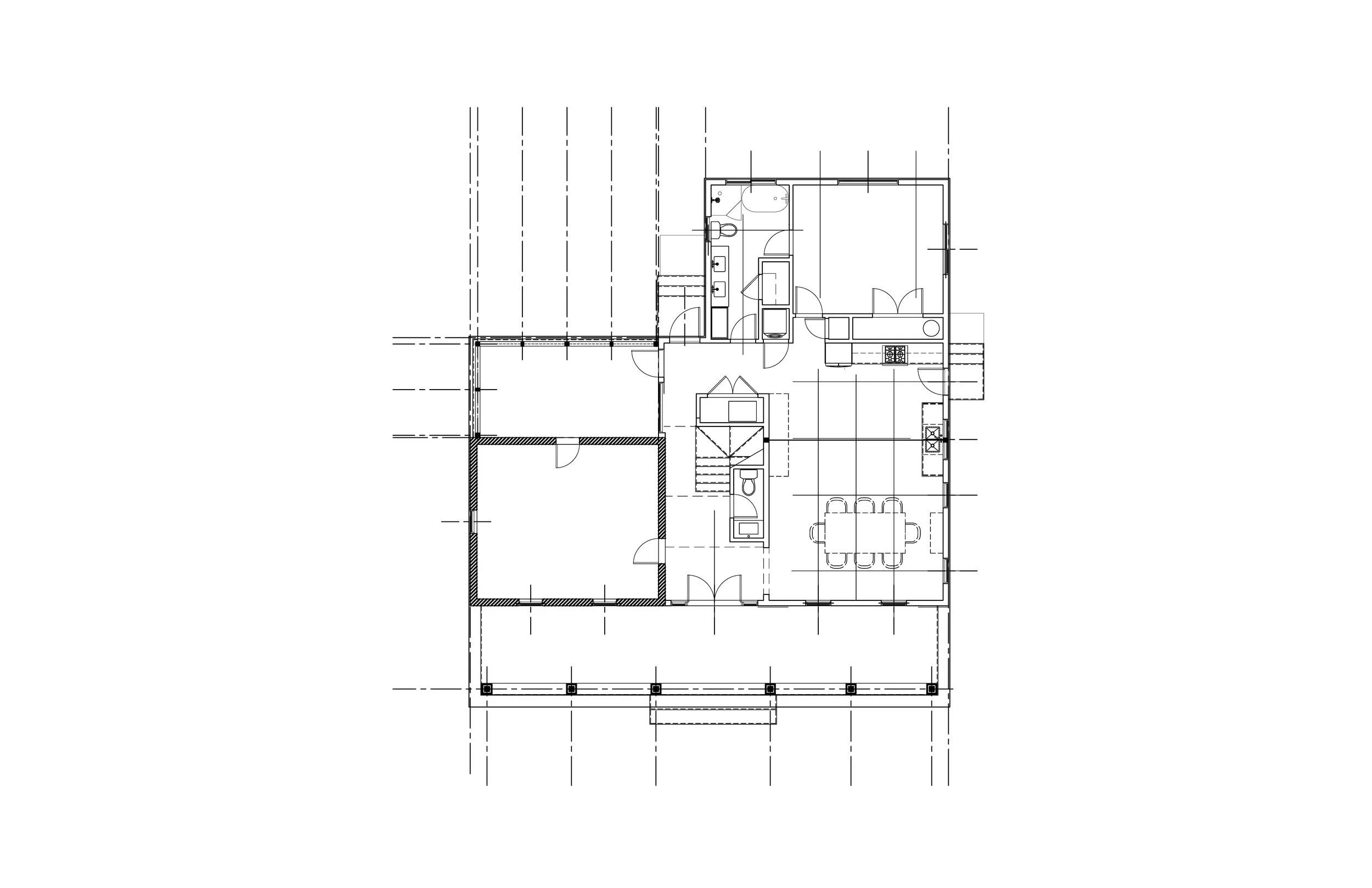
Van Leer Log Cabin
Respecting a legacy that dates back to the 1850s, this project restores an original family log cabin while propelling it into the future. A new modern addition expands the kitchen and dining areas to accommodate large generational gatherings, providing updated bedroom suites for parents and grandkids while honoring the site's historic character.