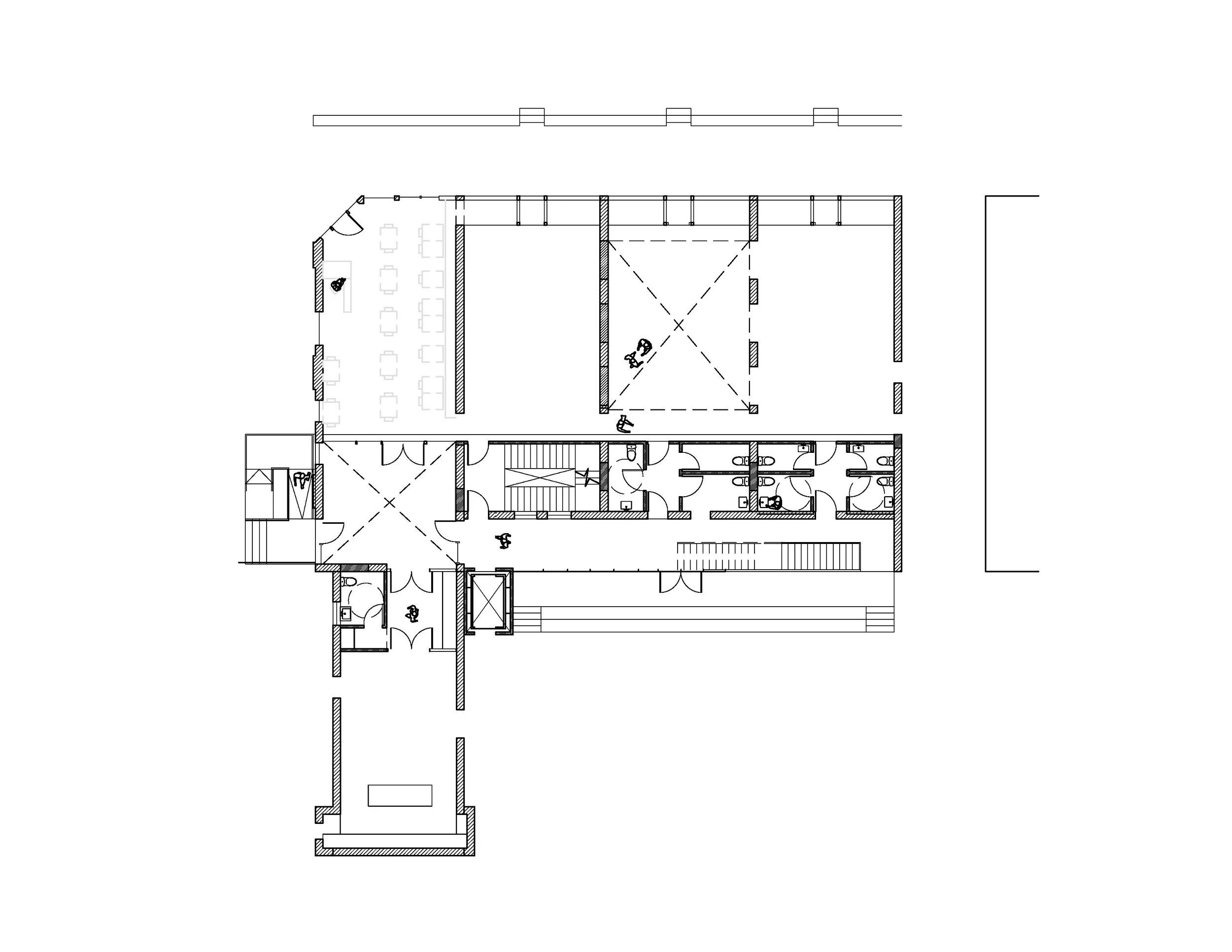
Urb Arts Broadway
This headquarters for a local arts non-profit uses "spatial carving" to bring new life to a donated city building. By creating strategic double-height voids, we introduced social hubs that allow staff and artists to observe and engage with the gallery’s daily activities from private studios rotating around the core.