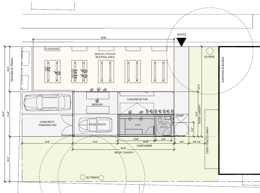
Patio Pizza

This outdoor-focused dining destination proves that industrial materials can create a vibrant social hub. By utilizing a shipping container for a hyper-efficient back-of-house and bar, the design focuses resources on a sprawling patio gridded with structural poles that provide integrated power, lighting, and shade for a permanent, weather-ready food truck home.

Previous
Previous

Hidden Spa

Next
Next

Elnore