Noteworthy

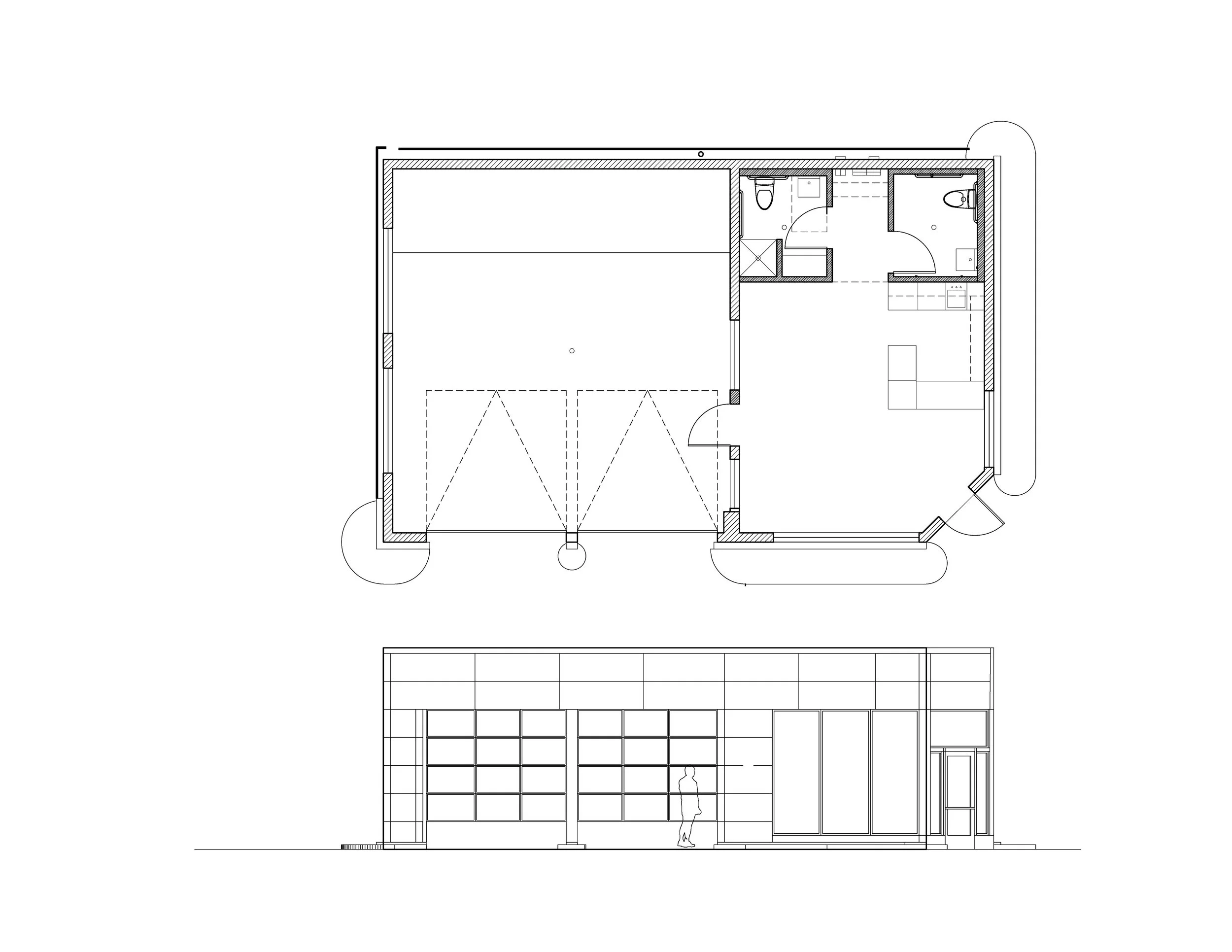
A creative adaptive reuse of a Standard Oil gas station into a piano cafe and yoga studio. The old office was reimagined as a cafe while the repair shop became a performance stage and studio, all integrated with new public gardens and outdoor social spaces.

Previous
Previous

Elnore

Next
Next

Kenule