Medium

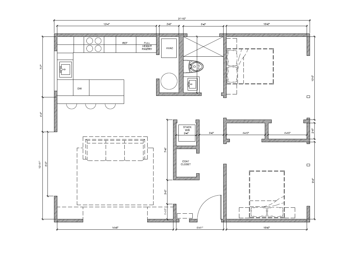
Designed as a "home away from home," this mid-sized accessory dwelling unit offers a functional starting point for young families or roommates to plant roots in the city. The layout balances a compact footprint with thoughtful spatial planning, providing a private, detached residence that functions with the autonomy of a full-scale house.

Previous
Previous

Johnes Farm

Next
Next

Carriage House