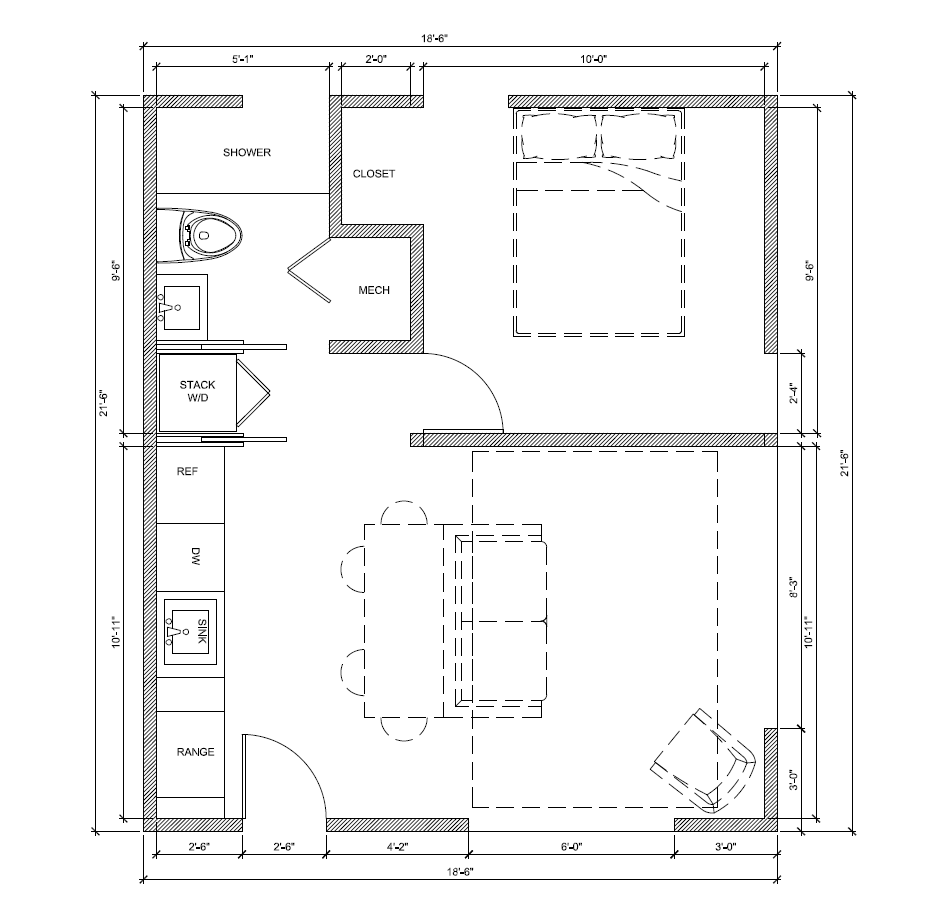
Ladu Casita
This versatile casita serves as a missing-middle solution for both young professionals and empty nesters. Whether used as a high-end starter home or a downsizing retreat that allows retirees to supplement their income by renting their primary residence, the design offers a sophisticated, manageable alternative to apartment living.