Kennerly

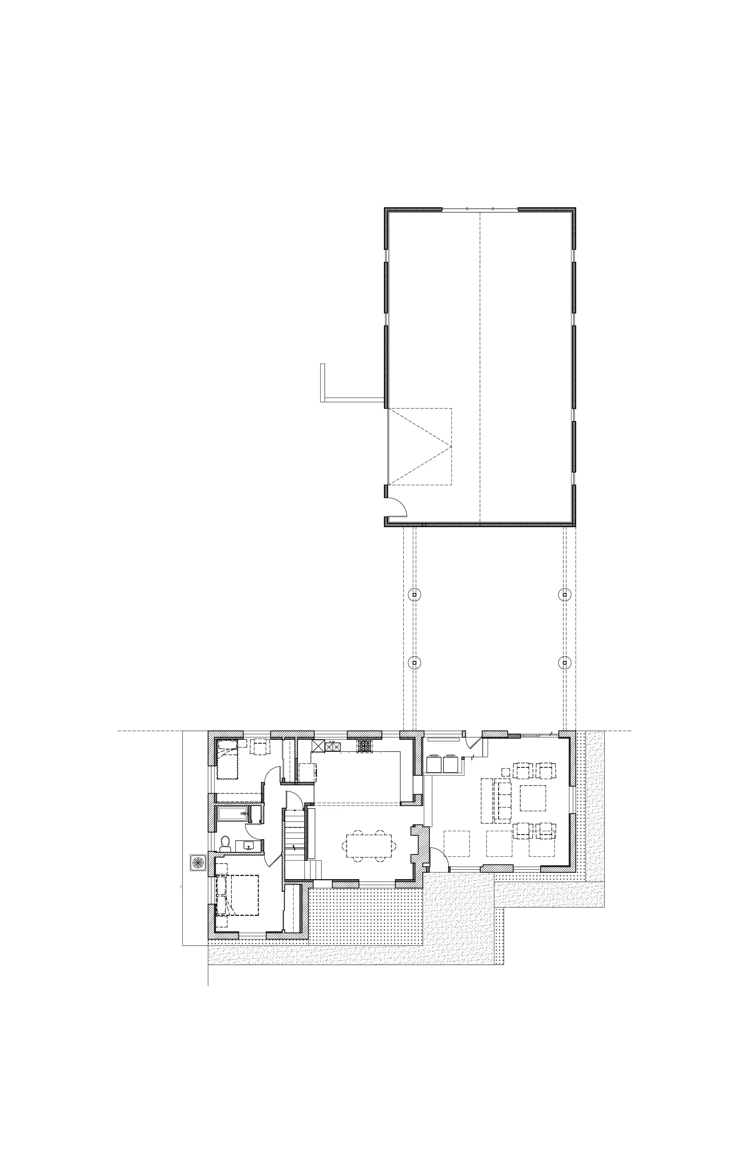
This comprehensive renovation and studio addition allows a young family to grow while remaining close to their roots. By converting a former garage into a social den and connecting the home via a three-bay carport to a new lofted workshop, the design facilitates the creation of large-scale sculptures while maintaining a modern, open-plan domestic life.

Previous
Previous

Bunkhouse

Next
Next

Frederick