Jasper

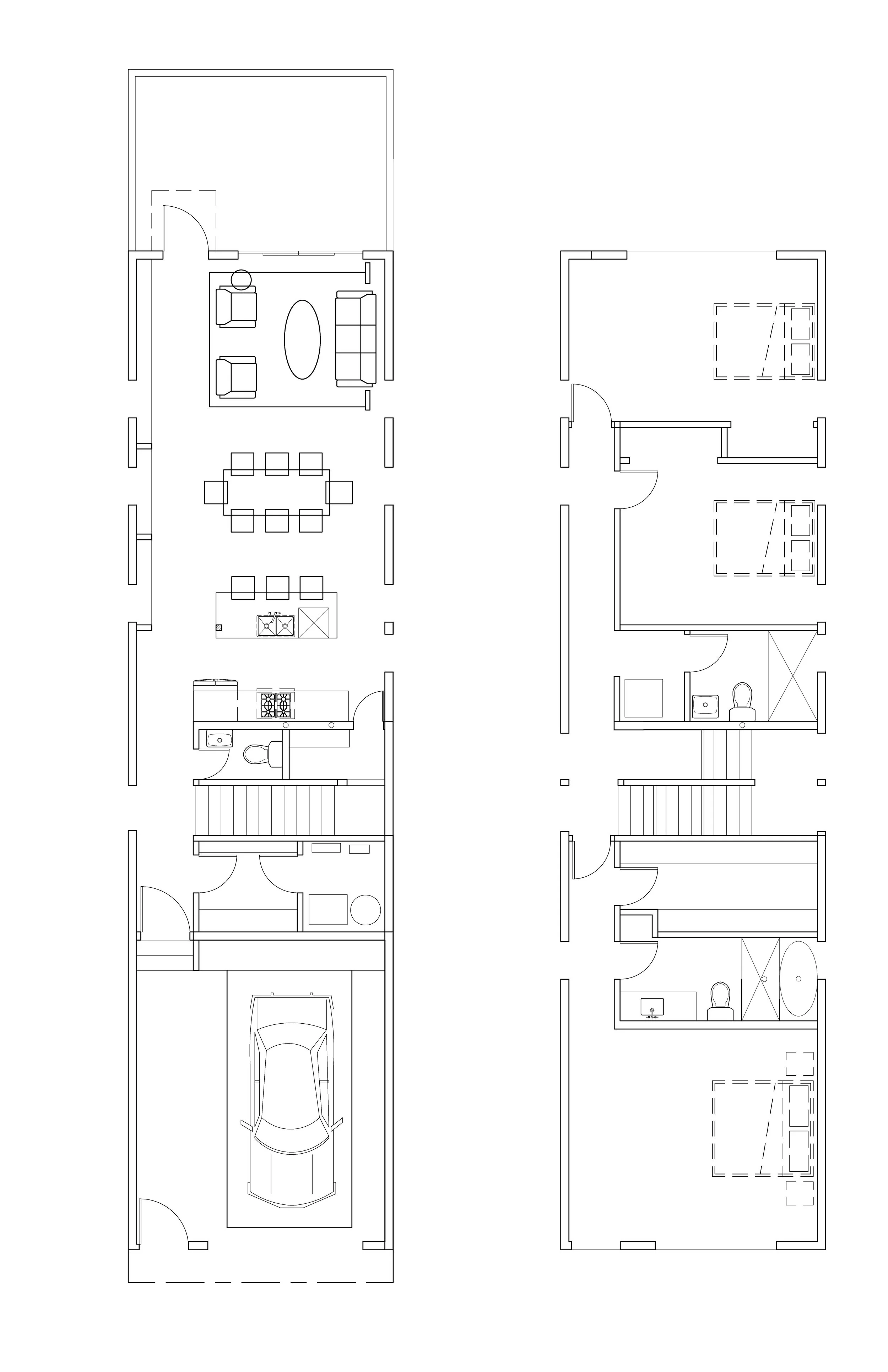
This new home model proves that narrow-lot constraints can drive superior design. Faced with the necessity of a front-loading garage, we designed the space to be "future-proof," serving as either a vehicle bay or a professional work-from-home studio. With a focus on structural efficiency and a footprint that fits where others won't, this model balances a wide-open lower level with premium modern finishes and expansive glazing in the upper-story retreats.

Next
Next

Periscope House