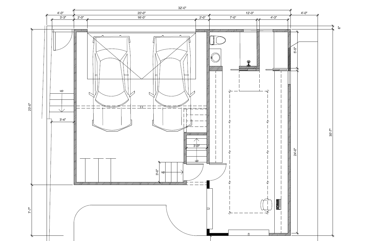
Garage Studio

This modern Accessory Dwelling Unit utilizes the Shaw neighborhood's elevation change to create a terraced garage and guest house. The design takes advantage of the lower alley and higher yard, allowing for a private residential studio topped with a panoramic roof deck.

Previous
Previous

Clubhouse

Next
Next

Pestalozzi