California Cohousing

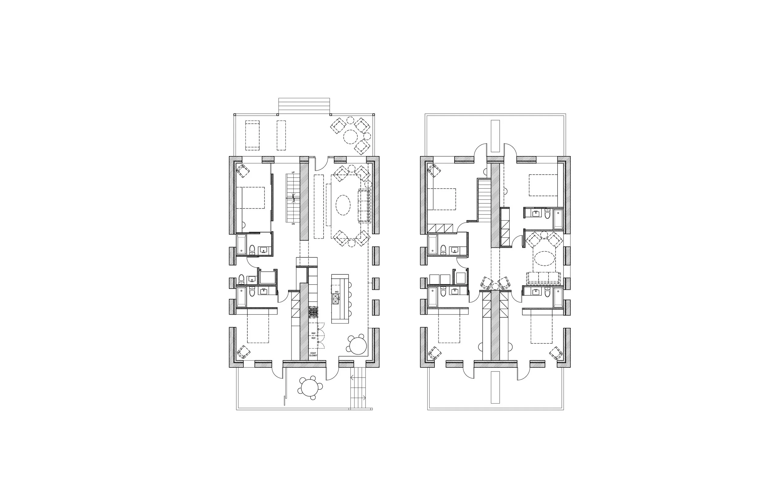
An intentional living project that transformed a traditional four-family structure into a cohousing hub. The design features four separate apartments above a caretaker unit and communal social spaces, tied together by a blend of public and private outdoor decks on every level.

Previous
Previous

Chapel Hill

Next
Next

Farmhouse