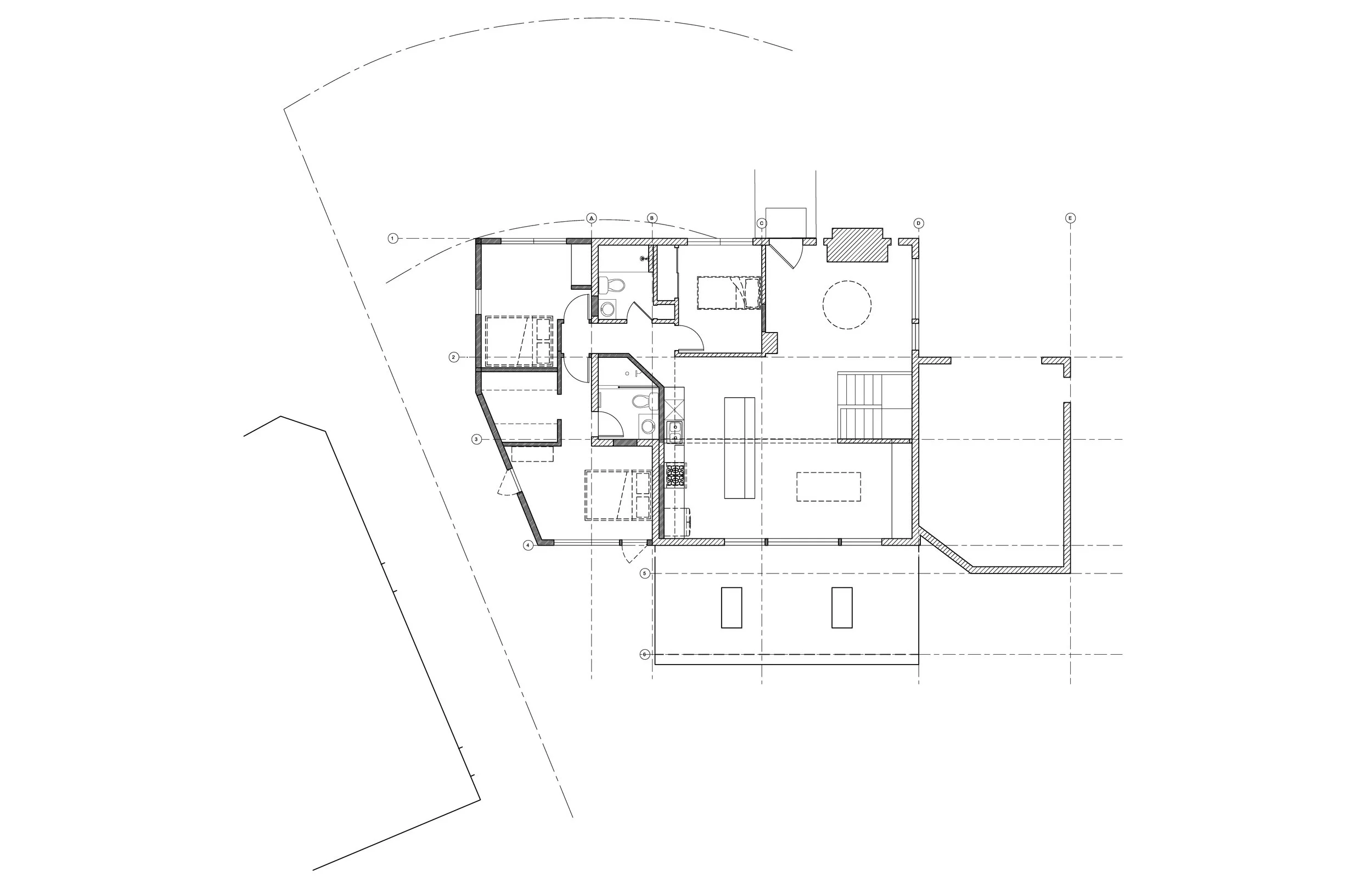
Birch House

To accommodate a growing family in a "stuffy" lakefront log home, this addition pushes outward to capture the Northern Illinois shoreline. The new volume introduces social spaces and a parent suite that swap the original dark interior for expansive views of the water.

Previous
Previous

Taylorville Modern

Next
Next

Wyoming