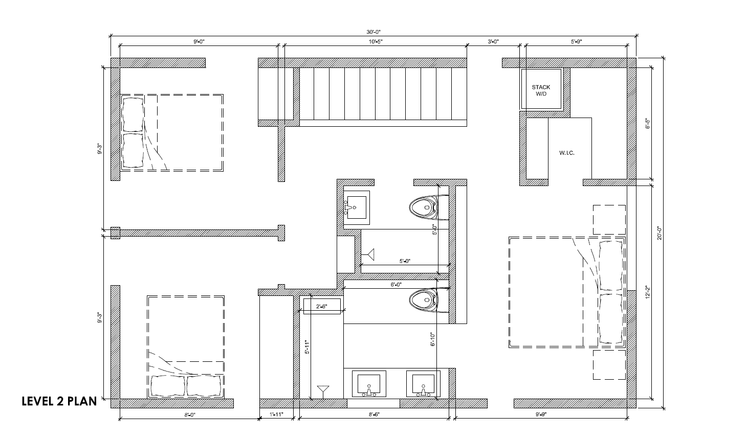
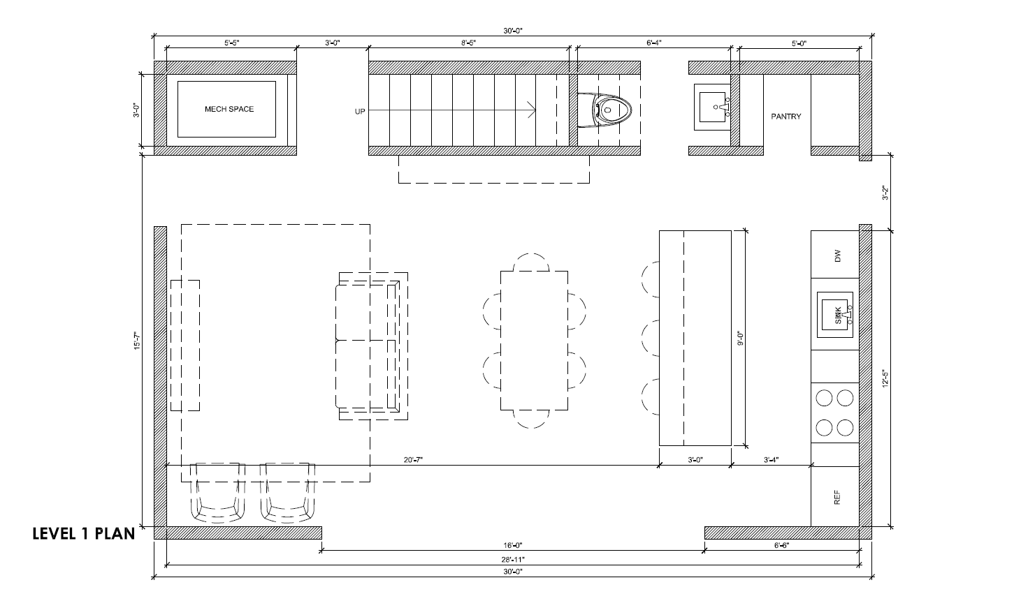
3-Bed

This accessory dwelling unit proves that high density and high livability are not mutually exclusive. Designed to be efficient yet functional for either a small family or roommates, the layout conforms to strict ADU guidelines while providing an adaptable three-bedroom footprint that encourages urban density without sacrificing the comforts of a traditional home.

Previous
Previous

Dormer

Next
Next

Workshop ADU