Nirk
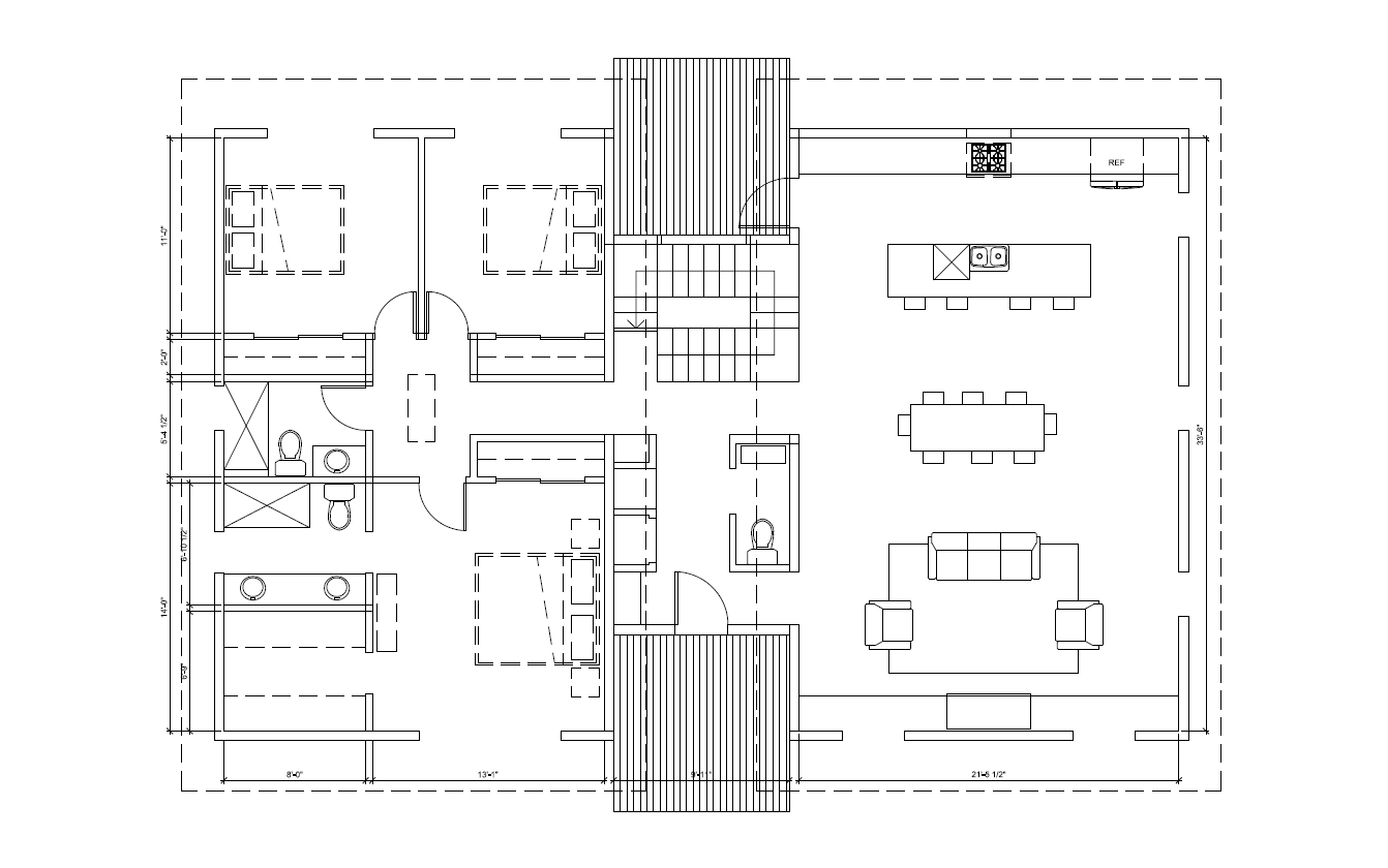
This Kirkwood residence is organized around a dramatic central gap that serves as a spatial "hinge." This void effectively divides the private bedroom wing from the open, high-volume living areas and a discreetly integrated tuck-under garage.
This Kirkwood residence is organized around a dramatic central gap that serves as a spatial "hinge." This void effectively divides the private bedroom wing from the open, high-volume living areas and a discreetly integrated tuck-under garage.