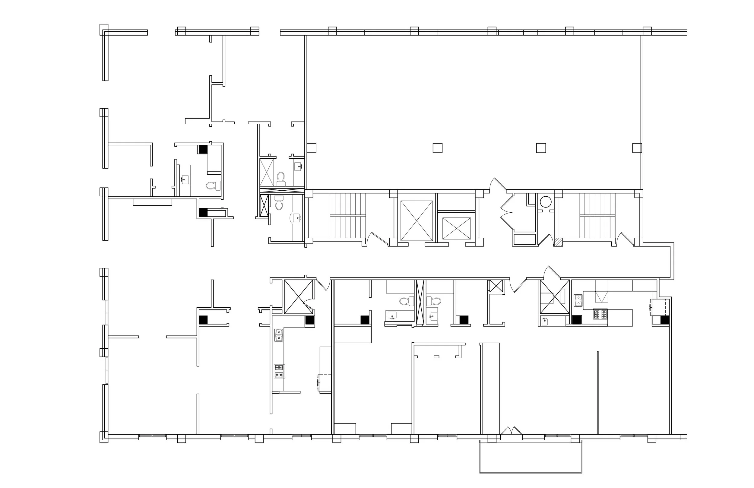
Hanley Condos

A specialized renovation for a newly blended family that merges two condos into one. The design creates a "social hub" in the center to bring the families together, while placing the parents' and kids' quarters at opposite ends of the unit for necessary privacy.

Previous
Previous

Kirkwood Craftsman