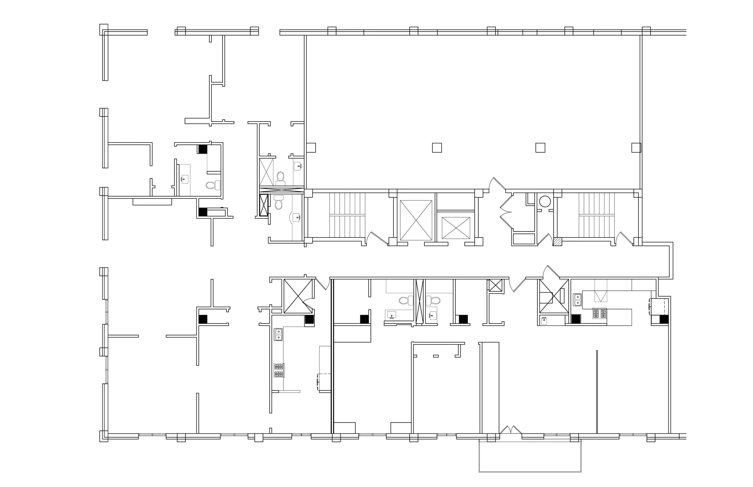
Hanley Condo

This project merges two separate condos into a single residence for a newly blended family. The design places the parents and kids on opposite ends of the unit for privacy, joined by a large "social hub" in the center to foster a sense of togetherness.

Previous
Previous

Humphrey

Next
Next

West Coast Carport